Direkt zur Suche und Hauptnavigation Direkt zum Inhalt
Übernehmen

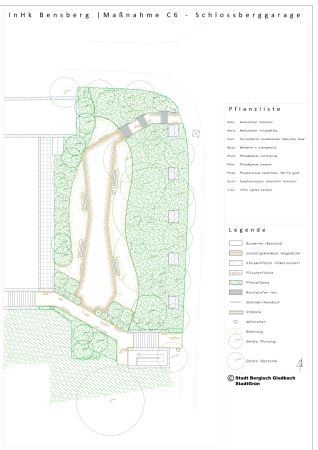
Start für Umbau der Grünflächen auf der Schlossberg-Garage

Start für Umbau der Grünflächen auf der Schlossberg-Garage Bild vergrößern

Ein weiterer Baustein des InHK Bensberg zur Steigerung der Attraktivität des Stadtteils wird nun planmäßig in Angriff genommen: Ab der KW 41 startet der Umbau der Grünfläche auf dem Dach der Schlossberg-Garage. Neben der Modernisierung des Mobiliars und der Anlage einer bunten und klimaangepassten Staudenmischpflanzung ist auch die Überarbeitung der Flächenbeläge geplant. Zudem wird im Bereich der Kreuzung Schloßstraße / Kadettenstraße ein weiterer Zugang zur Grünfläche geschaffen.

Die für Planung, Bau und Unterhaltung der kleinen Parkanlage federführende Abteilung StadtGrün schätzt die Bauzeit auf voraussichtlich acht Wochen. Mit der Ausführung der anstehenden Landschaftsbauarbeiten konnte ein hiesiges Unternehmen beauftragt werden. Straßensperrungen können nach vorliegender Planung vermieden werden.

Hintergrund

Die Umbaumaßnahmen der Grünflächen auf der Schlossberg-Garage sind unter der Bezeichnung “C6 -Freiflächen” Teil einer Reihe von 33 Einzelmaßnahmen des InHK Bensberg. Das InHK Bensberg umfasst bauliche, verkehrstechnische und gestalterische Optimierungen, welche die Attraktivität der Quartiere heben und die Wohn- und Lebensqualität für Bensberg und Bockenberg nachhaltig verbessern. Informationen auf den Webseiten der Stadt unter http://www.bergischgladbach.de/inhk-startseite.aspx.

Informationen zum Rundwanderweg ‚Bensberger Schlossweg‘ und weiteren Themen- und Erlebniswegen im Bergischen Wanderland unter https://www.bergisches-wanderland.de/bergische-streifzuege